0
Skip to Content
WORK
PHILOSOPHY
ABOUT
CONNECT
Open Menu
Close Menu
WORK
PHILOSOPHY
ABOUT
CONNECT
Open Menu
Close Menu
WORK
PHILOSOPHY
ABOUT
CONNECT
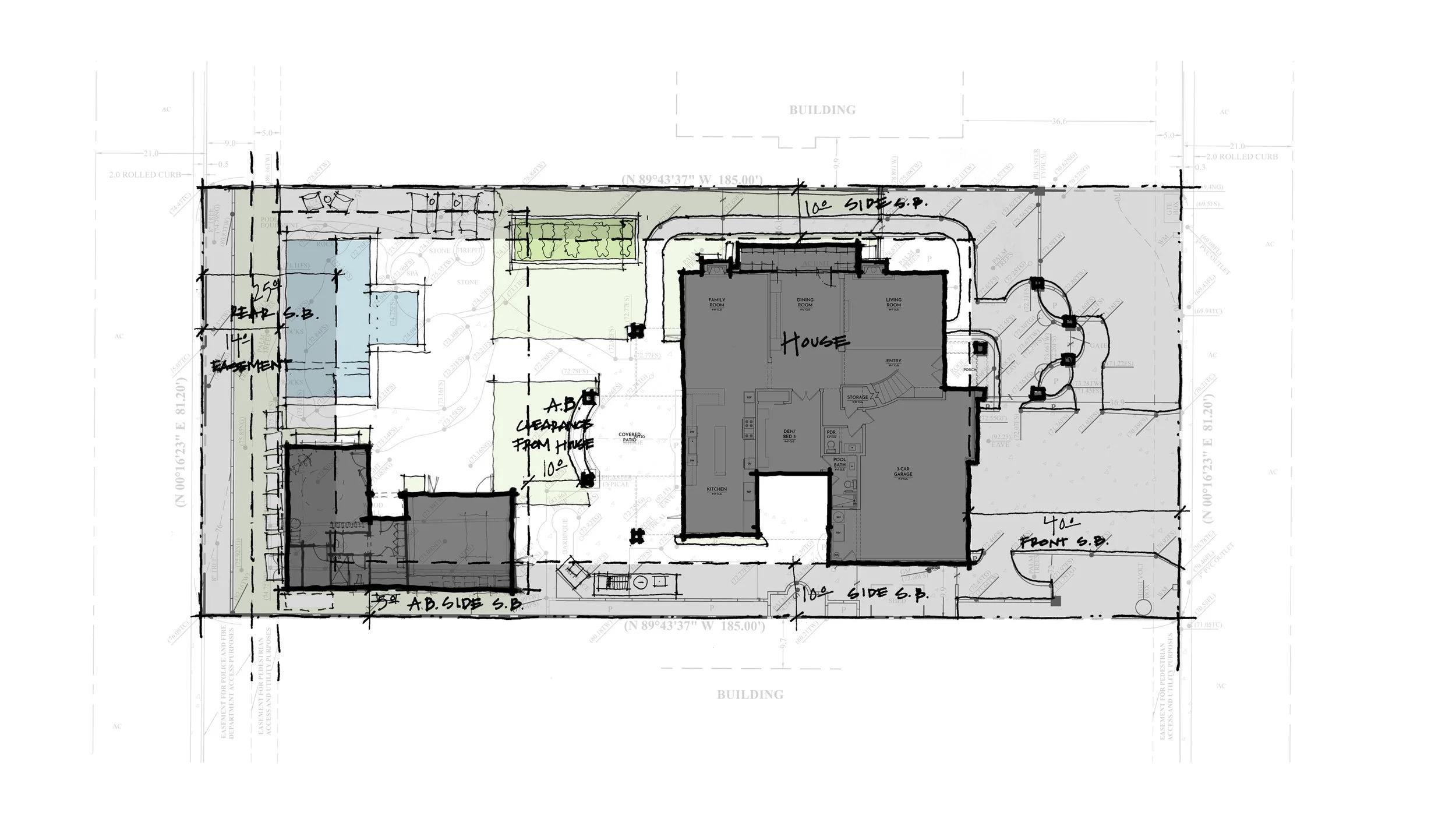
huntington beach pool house
Previous
Previous
Huntington Beach Addition
Next
Next
Beach Chalet